Viime viikot ovat menneet asioiden järjestelyssä ja odotellessa asioiden järjestymistä :)
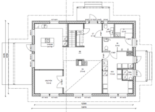
Eilen saatiin vihdoin ekat versiot pääpiirustuksista arkkitehdilta. Hyvältä näyttivät, vain joitakin (parikymmentä) pieniä viilauksia, mm. ikkunoiden kokoja ja muuta sellaista piti tehdä. Arkkitehti sai nekin tänään viilattua ja kuvat ovat nyt valmiita. Pitää vaan vielä kuitata ja hän lähettää huomenna Kopijyvälle tulostettavaksi. Täytyy sitten hakea kuvat sieltä huomenna, niin saan haettua naapurien nimet rakennuslupahakemukseen. Laitanpa tämän kirjoituksen alle muutaman kuvan, niin saat käsitystä, minkälaista taloa ollaan tekemässä.
LVI-suunnittelijaa yritin metsästää pitkään ja vihdoin löysinkin. Hän ehtii tehdä jätevesisuunnitelman toivottavasti ensi viikon alkuun, jotta saataisiin rakennuslupahakemus sisään. Ehtii lisäksi tehdä LVI-suunnitelman ensi viikon loppuun mennessä ennen lomalle jääntiään. Toivottavasti tulee kerralla valmista, kun en ole tarkastamassa.
Ai niin, tulipa tässä nyt mieleen, että piti tänään täyttää rakennuslupahakemukset, jotta voi huomenna lähteä metsästämään naapureiden nimiä niihin. On tämäkin hullua, Laukaan kunta antoi keväällä vanhan lomakkeen / ohjeistuksen suunnittelutarveratkaisuhakemusta varten ja siitä puuttui ohje, että otetaan naapurien nimet myös asemapiirrokseen. Nyt joudutaan hakemaan nimet uudestaan.
Sähköliittymän tilauksen muistin maanantaina ja soittelin senkin kuntoon. Toimitusaika on 6-7 viikkoa, joten ei ihan välttämättä ehdi siihen, kuin oli tarkoitus. Tarkoitus oli päästä perustusten tekoon elokuun ekalla viikolla, kun on vielä lomaa. Sähköurakoitsija on vielä sopimatta, mutta alustavia kyselyjä on tehty. Konemiehen kanssa sovittiin, että aloitettaisiin heinäkuun vika viikolla pohjien teko. Sitä ennen pitää loput puut kaataa ja sahauttaa. Täytyy katsoa johonkin kohtaa heinäkuuta. Voisi yrittää järjestää talkoopäivän siihen sahaukseen, jos saisi vähän enemmän miehiä, niin saisi taapeloitua saman tien. Pistäpä siis korvan taakse todennäköisesti heinäkuun toinen täysi viikko (ennen reiskaa) :)
Melkoista stressaamista on ollut viime viikot, kun on joutunut odottamaan asioiden järjestymistä, jotta voi järjestää seuraavia asioita. Esim. LVI-suunnitelmia kun on paha tehdä ilman pääpiirustuksia. Laukaan kunnassa on lomatkin rakennusvalvonnassa pahasti siten, että jos ei ensi viikolla saada hakemusta sisään, viivästyy sen käsittely vähintään pari viikkoa. Toivotaan, että naapureista ei ole kukaan lähtenyt kesälomareissuun vielä. Mutta, yritetään sanoi, no, kuka lie.
Tässäpä siis lopuksi muutama ote pääpiirustuksista:
Alakerran pohjakuva
Yläkerran pohjakuva
Julkisivut
keskiviikko 23. kesäkuuta 2010
tiistai 8. kesäkuuta 2010
Palauttelua, tuumailua ja kalustekuvien metsästystä
Sunnuntai meni lauantain puusavotasta palautellessa. Onpa mukava, kun on olemassa pyhät, jolloin saa vetää lonkkaa. Aika moni paikka oli kipeenä lauantain "rehkimisestä". Ilta venähti pitkäksi, kun tuli mietittyä ja stressattua erilaisia asioita, mm. perustussuunnitelman tekemistä. Luulin, että sekin pitää erikseen teettää.
Maanantaina Helsinkiin ajellessa soittelin vastaavalle mestarille ja talotoimittajalle, jolloin selvisi, että pakettiin kuuluikin kaikki piirustukset, asemapiirrosta myöten. Turhaan olin siis stressannut. Tosin paketissa oli vain talon piirustukset, koska tarjouskin oli pyydetty sen mukaan, eli autotallin ja pihasaunan piirustuksista tulee pieni lisäkulu. Toivottavasti vain joitakin satasia.
Arkkitehdille varasimme ajan hyvissä ajoin, koska tiesimme, että loppusuoralla olevat toimittajat käyttivät molemmat samaa arkkitehtiä. Soitin jo viime viikolla Puustelliin, kun ei ole vielä kalustekuvista kuulunut mitään ja keskiviikkoaamuna pitäisi olla arkkitehdin luona miettimässä pohjaa. Lupasivat soitella maanantaina, mutta eivät sitten soittaneet. Soitin uudestaan maanantai-iltana ja lupasivat piirtää tiistaina. Tiistaiaamuna soittivatkin sitten ja sanoivat, että kuvat saa hakea puolenpäivän jälkeen.
Töistä lähtiessä hain kuvat ja niitä sitten tuumailemaan. Hyvältähän ne näyttävät, tosin keittiösaareke on hieman turhan lähellä keittiön muita kalusteita, eli ei jää oikein kokkaustilaa. Saareke voidaan onneksi sijoittaa melko vapaasti joten täytynee sitä hieman siirtää lähemmäksi ruokailutilaa. Ei ole nimittäin mukava, jos kokatessa toinen tökkii koko ajan selkäpuolelle tehdessään jotain muuta, kuten tyhjentää tiskikonetta. Joitakin pieniä puutteita oli jäänyt muutenkin, mutta eiköhän ne saada korjattua ajan kanssa. Näillä päästään kuitenkin liikenteeseen ja arkkitehdin luokse.
Puiden sahauttamista olen miettinyt ja googlettanutkin monena iltana. Eli mitä siinä pitää ottaa huomioon, mistä osasta puuta parhaat lankut jne. Jossakin suosittelivat, että ottaa oikean ammattilaisen kaataamaan, niin tulee apteeraus tehtyä oikein. Kumma termi tuokin, piti taas googlettaa, mitä se apteeraus oikein tarkoittaa. Kaikkeen sitä joutuukin tutustumaan. Onhan tuolla kyllä niin seikkaperäiset ohjeet, että eiköhän tällainen "oppinut" mies tuon nopeasti omaksu. No joo varmaan...
Eli huomenna arkkitehdille ja katsotaan, mitä hän sanoo ajatuksistamme, olemmeko ihan pieleen miettineet asioita vai miten.
Maanantaina Helsinkiin ajellessa soittelin vastaavalle mestarille ja talotoimittajalle, jolloin selvisi, että pakettiin kuuluikin kaikki piirustukset, asemapiirrosta myöten. Turhaan olin siis stressannut. Tosin paketissa oli vain talon piirustukset, koska tarjouskin oli pyydetty sen mukaan, eli autotallin ja pihasaunan piirustuksista tulee pieni lisäkulu. Toivottavasti vain joitakin satasia.
Arkkitehdille varasimme ajan hyvissä ajoin, koska tiesimme, että loppusuoralla olevat toimittajat käyttivät molemmat samaa arkkitehtiä. Soitin jo viime viikolla Puustelliin, kun ei ole vielä kalustekuvista kuulunut mitään ja keskiviikkoaamuna pitäisi olla arkkitehdin luona miettimässä pohjaa. Lupasivat soitella maanantaina, mutta eivät sitten soittaneet. Soitin uudestaan maanantai-iltana ja lupasivat piirtää tiistaina. Tiistaiaamuna soittivatkin sitten ja sanoivat, että kuvat saa hakea puolenpäivän jälkeen.
Töistä lähtiessä hain kuvat ja niitä sitten tuumailemaan. Hyvältähän ne näyttävät, tosin keittiösaareke on hieman turhan lähellä keittiön muita kalusteita, eli ei jää oikein kokkaustilaa. Saareke voidaan onneksi sijoittaa melko vapaasti joten täytynee sitä hieman siirtää lähemmäksi ruokailutilaa. Ei ole nimittäin mukava, jos kokatessa toinen tökkii koko ajan selkäpuolelle tehdessään jotain muuta, kuten tyhjentää tiskikonetta. Joitakin pieniä puutteita oli jäänyt muutenkin, mutta eiköhän ne saada korjattua ajan kanssa. Näillä päästään kuitenkin liikenteeseen ja arkkitehdin luokse.
Puiden sahauttamista olen miettinyt ja googlettanutkin monena iltana. Eli mitä siinä pitää ottaa huomioon, mistä osasta puuta parhaat lankut jne. Jossakin suosittelivat, että ottaa oikean ammattilaisen kaataamaan, niin tulee apteeraus tehtyä oikein. Kumma termi tuokin, piti taas googlettaa, mitä se apteeraus oikein tarkoittaa. Kaikkeen sitä joutuukin tutustumaan. Onhan tuolla kyllä niin seikkaperäiset ohjeet, että eiköhän tällainen "oppinut" mies tuon nopeasti omaksu. No joo varmaan...
Eli huomenna arkkitehdille ja katsotaan, mitä hän sanoo ajatuksistamme, olemmeko ihan pieleen miettineet asioita vai miten.
lauantai 5. kesäkuuta 2010
Puunkaatoa ja palokärkeä
Nonih, kaupunkilaispoika joutui puusavottaan (no, ollaanhan me jo maalla asuttu 4,5 vuotta). Sen verran osasin varautua, että kävin Laukaan Rautiasta ostamassa viilan ja pyysin samalla hieman viilausohjeita. Aiemmin kun en ole moottorisahan teräketjua teroittanut, tunnustettakoon se nyt tässä. Onneksi oli saha mukana, niin osattiin valita oikean kokoinen viila.
Matkalla tontille soitin sahurille, jolla on kenttäsirkkeli. Mietittiin siinä, että ihan sama, vaikka sahataan heinäkuussa, kun ollaan joka tapauksessa myöhässä. Tämän vuoksi jätetään isompien puiden kaatokin vähän myöhempään. Tarkoitus olisi sahuuttaa männyistä pelkkahirsiä (aihioita) saunatarpeiksi ja ylijäämästä lankkua ja muuta. Ja sitä tuppeensahattua, jolla olis tarkoitus tehdä saunan katto. Pihasta joutuu todennäköisesti kaatamaan ainakin yhden suuren koivunkin, joten siitäkin saisi mukavasti tuppeensahattua koivua. Ei vaan heti tule mieleen, mihin sitä käyttäisi. Jos joku keksii, niin kommentoi. Jos en keksi mitään, niin täytyy tehdä polttopuita.
Tontille päästyäni laitoin ensin sahan kuntoon (tankkaus ja elämän eka teroitus) ja sen jälkeen puunkaatoon. Vesakko lähti ensimmäisenä ja sen jälkeen päästiin isompien puiden kimppuun. Päivä oli kovin tuulinen, välillä tuuli tosi kovasti puuskissa, joten puunkaatoa piti kokeilla varovasti aina kun oli tyyntä. En näin amatöörinä edes viitsi yksin lähteä isompien puiden kimppuun, joten kaatelin nyt sellaisia n. 15 cm halkaisijaltaan näreitä.
Älytön homma tuossa tontin raivauksessa on, varsinkin jos meinaa kaikki jätökset tuoda pois. Saas nähdä, tuleeko haudattua johonkin kaivantoon osa. Kaivinkonemies sanoi aiemmin, että joku hakefirma vois hakea poiskin pientä korvausta vastaan. Täytyy nyt katsoa. Tulishan noista komea juhannuskokkokin...
Ehdin tunnin verran sahailla, ekan tankillisen tyhjäksi ja sen jälkeen olikin lounastauko. Heljä ja lapset tulivat tontille Midian kautta kera kolmen pitsan (Laukaan parhaat pitsat, toim.huom!) sekä kahvia termospullossa ja eilen itse leipomiani kauralastuja. Tankkaus onnistui näin ollen loistavasti. Sahakin tuli tankattua ja harjoiteltua edelleen sitä teroittamishommaa. Hyvin se lähti luonnistumaan, kai. Ainakaan vielä ei terä vedä vinoon :)
Vähän aikaa tehtiin yhdessä raivausta ja Heljän kanssa kaadettiin pari puuta. Vaaratilannekin koettiin, kun meinasin, että vaimolla on liian pitkät jalat. No joo, pitäs varmaan olla vähän varovaisempi ja vähemmän innostunut sen sahan kanssa. Turvahousuja ja kenkiä en tietenkään omista, ei viitsi tuollaisen pikkuprojektin takia investoida. Täytyy toivoa (eli olla varovainen), että ei satu mitään.
Heljä ja lapset lähtivät jossakin vaiheessa ja itse jatkoin vielä vähän aikaa. Meni osittain hohhailuksi ja haaveiluksi, samalla tuli pihasaunan paikkaa mietittyä. Nyt se olisi tulossa pihan perällä olevan kallion päälle. Pihan perällä, talon takana on siis n. 2-3 metriä korkea kalliojyrkänne, jonka päällä on mielestäni hyvä saunan paikka.
Lähes kaikki pieneksi katsomani näreet ja vesakot tuli kaadettua, joten poistuin tontilta hyvissä ajoin. Täytyy aloitella tätä projektia hieman kevyemmin, jotta ei heti alussa väsähdä. Loppujen lopuksi onneksi pohjien teko venähtää heinäkuun lopulle, niin on tässä aikaa rauhassa suunnitella.
Kuvien kanssa meinasi käydä ohrasesti, kun kaikki muistikortit oli täynnä lasten koulun kevätjuhlan jäljiltä. Poistin yhden videon, jolla sain tilaa muutamalle otokselle, joten päivitän tuon google mapsin kuvan pois tuosta ylhäältä, kunhan ehdin.
Niin ja se palokärki. Olin juuri lopettanut sahailun, kun ihmettelin, mikä tuossa viuhahti. Katsoin puun latvukseen ja näin, että joku tikka se on. Tosi iso oli ja pitikin kotona googlettaa, mitä lajia (huom! en ole mikään lintuasiantuntija). Nähtävästi palokärki, josta Wikipedia sanoo, että on iso peloton tikka. No tosi peloton onkin, kun ei moottorisahaa pelkää. Kuvaa en ehtinyt linnusta saada, kun se lähti jatkamaan matkaa.
Lopuksi pari kuvaa päivän aikaansaannoksista:
Tontilta tielle päin.
Talon / pihan suuntaan. Vesakko on hävinnyt ja puut hieman harventuneet. Ei tosin vielä näytä oikein miltään.
Matkalla tontille soitin sahurille, jolla on kenttäsirkkeli. Mietittiin siinä, että ihan sama, vaikka sahataan heinäkuussa, kun ollaan joka tapauksessa myöhässä. Tämän vuoksi jätetään isompien puiden kaatokin vähän myöhempään. Tarkoitus olisi sahuuttaa männyistä pelkkahirsiä (aihioita) saunatarpeiksi ja ylijäämästä lankkua ja muuta. Ja sitä tuppeensahattua, jolla olis tarkoitus tehdä saunan katto. Pihasta joutuu todennäköisesti kaatamaan ainakin yhden suuren koivunkin, joten siitäkin saisi mukavasti tuppeensahattua koivua. Ei vaan heti tule mieleen, mihin sitä käyttäisi. Jos joku keksii, niin kommentoi. Jos en keksi mitään, niin täytyy tehdä polttopuita.
Tontille päästyäni laitoin ensin sahan kuntoon (tankkaus ja elämän eka teroitus) ja sen jälkeen puunkaatoon. Vesakko lähti ensimmäisenä ja sen jälkeen päästiin isompien puiden kimppuun. Päivä oli kovin tuulinen, välillä tuuli tosi kovasti puuskissa, joten puunkaatoa piti kokeilla varovasti aina kun oli tyyntä. En näin amatöörinä edes viitsi yksin lähteä isompien puiden kimppuun, joten kaatelin nyt sellaisia n. 15 cm halkaisijaltaan näreitä.
Älytön homma tuossa tontin raivauksessa on, varsinkin jos meinaa kaikki jätökset tuoda pois. Saas nähdä, tuleeko haudattua johonkin kaivantoon osa. Kaivinkonemies sanoi aiemmin, että joku hakefirma vois hakea poiskin pientä korvausta vastaan. Täytyy nyt katsoa. Tulishan noista komea juhannuskokkokin...
Ehdin tunnin verran sahailla, ekan tankillisen tyhjäksi ja sen jälkeen olikin lounastauko. Heljä ja lapset tulivat tontille Midian kautta kera kolmen pitsan (Laukaan parhaat pitsat, toim.huom!) sekä kahvia termospullossa ja eilen itse leipomiani kauralastuja. Tankkaus onnistui näin ollen loistavasti. Sahakin tuli tankattua ja harjoiteltua edelleen sitä teroittamishommaa. Hyvin se lähti luonnistumaan, kai. Ainakaan vielä ei terä vedä vinoon :)
Vähän aikaa tehtiin yhdessä raivausta ja Heljän kanssa kaadettiin pari puuta. Vaaratilannekin koettiin, kun meinasin, että vaimolla on liian pitkät jalat. No joo, pitäs varmaan olla vähän varovaisempi ja vähemmän innostunut sen sahan kanssa. Turvahousuja ja kenkiä en tietenkään omista, ei viitsi tuollaisen pikkuprojektin takia investoida. Täytyy toivoa (eli olla varovainen), että ei satu mitään.
Heljä ja lapset lähtivät jossakin vaiheessa ja itse jatkoin vielä vähän aikaa. Meni osittain hohhailuksi ja haaveiluksi, samalla tuli pihasaunan paikkaa mietittyä. Nyt se olisi tulossa pihan perällä olevan kallion päälle. Pihan perällä, talon takana on siis n. 2-3 metriä korkea kalliojyrkänne, jonka päällä on mielestäni hyvä saunan paikka.
Lähes kaikki pieneksi katsomani näreet ja vesakot tuli kaadettua, joten poistuin tontilta hyvissä ajoin. Täytyy aloitella tätä projektia hieman kevyemmin, jotta ei heti alussa väsähdä. Loppujen lopuksi onneksi pohjien teko venähtää heinäkuun lopulle, niin on tässä aikaa rauhassa suunnitella.
Kuvien kanssa meinasi käydä ohrasesti, kun kaikki muistikortit oli täynnä lasten koulun kevätjuhlan jäljiltä. Poistin yhden videon, jolla sain tilaa muutamalle otokselle, joten päivitän tuon google mapsin kuvan pois tuosta ylhäältä, kunhan ehdin.
Niin ja se palokärki. Olin juuri lopettanut sahailun, kun ihmettelin, mikä tuossa viuhahti. Katsoin puun latvukseen ja näin, että joku tikka se on. Tosi iso oli ja pitikin kotona googlettaa, mitä lajia (huom! en ole mikään lintuasiantuntija). Nähtävästi palokärki, josta Wikipedia sanoo, että on iso peloton tikka. No tosi peloton onkin, kun ei moottorisahaa pelkää. Kuvaa en ehtinyt linnusta saada, kun se lähti jatkamaan matkaa.
Lopuksi pari kuvaa päivän aikaansaannoksista:
Tontilta tielle päin.
Talon / pihan suuntaan. Vesakko on hävinnyt ja puut hieman harventuneet. Ei tosin vielä näytä oikein miltään.
perjantai 4. kesäkuuta 2010
Tähän mennessä tapahtunut
Jospa muutamalla sanalla avaisin, mitä tähän mennessä on tapahtunut.
Helmikuussa 2010 päätimme laittaa vanhan talomme myyntiin. Asia on ollut muutaman kerran mielessä aina remonttien yhteydessä ja aina olemme päättäneet, että kyllä me tässä asutaan. Ja remontoineet. Ja ostaneet ison raskaan pianon, joka oli aika hankala saada olohuoneeseen. Ja remontoineet. Ja sitten, kun kaikki oli jotakuinkin saatu valmiiksi, päätimme sitten myydä talomme. Ehdimme asua v. -85 valmistuneessa talossamme Vihtavuoressa n. 4,5 vuotta ja remontoimme sen lähes kokonaan.
Pitkäaikainen haaveemme on kuitenkin ollut, että joskus rakennamme uuden, jotta ei tarvitse tyytyä kompromisseihin. No, ehkä sitä joutuu uudessakin joiltakin osin tyytymään kompromisseihin, mutta saapahan ainakin joitakin ratkaisuja mielensä mukaan.
Mutta asiaan...
Talo pistettiin myyntiin joskus maaliskuussa ja kas, se menikin heti kaupaksi. Meidät yllätettiin siis ns. housut kintussa ja rakennusprojekti tuli entistä todellisemmaksi. Ei auttanut kuin lähteä tontteja etsimään. Tai oltiin niitä oikeastaan jo hieman tutkailtu siitä lähtien, kun ajatus oli kypsynyt vanhan talon myymiselle.
Haaveena meillä oli löytää mukava tontti Vihtavuoren alueelta, jotta lasten ei tarvitsisi vaihtaa koulua ja koska itsekin olemme tykänneet alueesta. Tahdoimme kuitenkin asutusalueelta hieman rauhallisempaan suuntaan, joten katseemme suuntautui Vihtasillan alueelle. Muutaman soiton jälkeen meillä oli pari eri vaihtoehtoa ja lopulta muutaman viikon pähkäilyn jälkeen päätimme ostaa tontin Saviontien varresta, n. 4 km päästä Vihtavuoren "keskustasta". Tontille ei tuosta vaan saanut rakennuslupaa, koska yleiskaava on kesken, vaan piti hakea suunnittelutarveratkaisua. Hakemus saatiin jätettyä ajallaan ja päätös tuli viime perjantaina virallisesti.
Tontin katselun aikana aloitimme sopivan talomallin etsimisen ja löysimmekin Lapplin mallistosta sopivan aihion. Pyörittelimme aihiota edestakaisin ja välillä muitakin malleja harkiten ja lopulta vasta parin talotoimittajan palaverin jälkeen lopullinen malli alkoi selvitä. Tarjoukset pyysimme lopulta viideltä talotoimittajalta, joista yksi elementtivalmistaja, yksi precut-toimittaja ja kolme ns. pitkästä tavarasta tekijää.
Lopullisen valinnan toimittajasta teimme eilen. Valinta oli äärimmäisen vaikea, markkinajohtajan ja paikallisen hyvästä laadustaan tunnetun pitkästä tavarasta tekevän pienyrityksen välillä. Palattakoon myöhemmin, kumpaan päädyimme, kunhan sopimukset on saatu tehtyä. Talotoimittaja pääsee aloittamaan työt n. elokuun lopussa, johon mennessä pitää saada vähintään pohjat tehtyä ja jos ehdin/jaksan, teen itse perustuksetkin valmiiksi.
Keittiökaupat tehtiin jo edellisenä viikonloppuna, jotta talon tarkkoja pohjia piirrettäessä on toimiva keittiö ja kodinhoitohuone valmiiksi mietittynä ja lopulliset seinien paikat on sitten sen mukaan helppo piirtää. Samalla saimme varmistettua, että emme tarvitse ainakaan keittiön takia puolen metrin jatkoa taloon, mikä on aiemmin ollut tarkoituksena. Mietitään sitä jatkon ottamista vielä lähinnä yläkerran makuuhuoneiden tilantarpeen vuoksi.
Olemme tietenkin jo tässä kuluneiden kuukausien aikana ehtineet miettimään asioita pidemmällekin, eli sisustusmateriaalien valintaa, takka-leivinuunin mallia jne. Ja erityisesti pihasaunaa olen itse suunnitellut :) Mutta niiden päätösten aika on onneksi myöhemmin. Nyt täytyy saada projekti käyntiin.
Kiirettä pitää todella, jotta saadaan projektia eteenpäin siten, että päästään heinäkuun lopulla aloittamaan pohjien tekoa. Lähinnä tässä vaiheessa kiirettä sen vuoksi, että saadaan rakennuslupahakemus sisään. Konemiehen kanssa on sovittu, että pohjia aletaan kaivamaan heinäkuun lopulla, joten perustusten tekoon jää aikaa n. kuukausi. Tänä vuonna tuli otettua taas hieman ylimääräistä vapaata lomarahojen muodossa, joten aikaa pitäisi järjestyä ja ehtiipä sitä jopa heinäkuussa vähän lomailemaankin, mitä ei ennakkoon olisi uskonut.
Huomenna lähden tontille kaatamaan pienempiä puita ja vesakkoa ja katsotaan sitten, kuinka paljon pitää kaataa isompia puita. Aiemmin olen laskeskellut, että n. 15 isoa mäntyä, pari kuusta ja ehkä yksi koivu kaatuisi. Niistä olisi sitten tarkoitus (lähinnä männyistä) saada pihasaunavärkit.
Helmikuussa 2010 päätimme laittaa vanhan talomme myyntiin. Asia on ollut muutaman kerran mielessä aina remonttien yhteydessä ja aina olemme päättäneet, että kyllä me tässä asutaan. Ja remontoineet. Ja ostaneet ison raskaan pianon, joka oli aika hankala saada olohuoneeseen. Ja remontoineet. Ja sitten, kun kaikki oli jotakuinkin saatu valmiiksi, päätimme sitten myydä talomme. Ehdimme asua v. -85 valmistuneessa talossamme Vihtavuoressa n. 4,5 vuotta ja remontoimme sen lähes kokonaan.
Pitkäaikainen haaveemme on kuitenkin ollut, että joskus rakennamme uuden, jotta ei tarvitse tyytyä kompromisseihin. No, ehkä sitä joutuu uudessakin joiltakin osin tyytymään kompromisseihin, mutta saapahan ainakin joitakin ratkaisuja mielensä mukaan.
Mutta asiaan...
Talo pistettiin myyntiin joskus maaliskuussa ja kas, se menikin heti kaupaksi. Meidät yllätettiin siis ns. housut kintussa ja rakennusprojekti tuli entistä todellisemmaksi. Ei auttanut kuin lähteä tontteja etsimään. Tai oltiin niitä oikeastaan jo hieman tutkailtu siitä lähtien, kun ajatus oli kypsynyt vanhan talon myymiselle.
Haaveena meillä oli löytää mukava tontti Vihtavuoren alueelta, jotta lasten ei tarvitsisi vaihtaa koulua ja koska itsekin olemme tykänneet alueesta. Tahdoimme kuitenkin asutusalueelta hieman rauhallisempaan suuntaan, joten katseemme suuntautui Vihtasillan alueelle. Muutaman soiton jälkeen meillä oli pari eri vaihtoehtoa ja lopulta muutaman viikon pähkäilyn jälkeen päätimme ostaa tontin Saviontien varresta, n. 4 km päästä Vihtavuoren "keskustasta". Tontille ei tuosta vaan saanut rakennuslupaa, koska yleiskaava on kesken, vaan piti hakea suunnittelutarveratkaisua. Hakemus saatiin jätettyä ajallaan ja päätös tuli viime perjantaina virallisesti.
Tontin katselun aikana aloitimme sopivan talomallin etsimisen ja löysimmekin Lapplin mallistosta sopivan aihion. Pyörittelimme aihiota edestakaisin ja välillä muitakin malleja harkiten ja lopulta vasta parin talotoimittajan palaverin jälkeen lopullinen malli alkoi selvitä. Tarjoukset pyysimme lopulta viideltä talotoimittajalta, joista yksi elementtivalmistaja, yksi precut-toimittaja ja kolme ns. pitkästä tavarasta tekijää.
Lopullisen valinnan toimittajasta teimme eilen. Valinta oli äärimmäisen vaikea, markkinajohtajan ja paikallisen hyvästä laadustaan tunnetun pitkästä tavarasta tekevän pienyrityksen välillä. Palattakoon myöhemmin, kumpaan päädyimme, kunhan sopimukset on saatu tehtyä. Talotoimittaja pääsee aloittamaan työt n. elokuun lopussa, johon mennessä pitää saada vähintään pohjat tehtyä ja jos ehdin/jaksan, teen itse perustuksetkin valmiiksi.
Keittiökaupat tehtiin jo edellisenä viikonloppuna, jotta talon tarkkoja pohjia piirrettäessä on toimiva keittiö ja kodinhoitohuone valmiiksi mietittynä ja lopulliset seinien paikat on sitten sen mukaan helppo piirtää. Samalla saimme varmistettua, että emme tarvitse ainakaan keittiön takia puolen metrin jatkoa taloon, mikä on aiemmin ollut tarkoituksena. Mietitään sitä jatkon ottamista vielä lähinnä yläkerran makuuhuoneiden tilantarpeen vuoksi.
Olemme tietenkin jo tässä kuluneiden kuukausien aikana ehtineet miettimään asioita pidemmällekin, eli sisustusmateriaalien valintaa, takka-leivinuunin mallia jne. Ja erityisesti pihasaunaa olen itse suunnitellut :) Mutta niiden päätösten aika on onneksi myöhemmin. Nyt täytyy saada projekti käyntiin.
Kiirettä pitää todella, jotta saadaan projektia eteenpäin siten, että päästään heinäkuun lopulla aloittamaan pohjien tekoa. Lähinnä tässä vaiheessa kiirettä sen vuoksi, että saadaan rakennuslupahakemus sisään. Konemiehen kanssa on sovittu, että pohjia aletaan kaivamaan heinäkuun lopulla, joten perustusten tekoon jää aikaa n. kuukausi. Tänä vuonna tuli otettua taas hieman ylimääräistä vapaata lomarahojen muodossa, joten aikaa pitäisi järjestyä ja ehtiipä sitä jopa heinäkuussa vähän lomailemaankin, mitä ei ennakkoon olisi uskonut.
Huomenna lähden tontille kaatamaan pienempiä puita ja vesakkoa ja katsotaan sitten, kuinka paljon pitää kaataa isompia puita. Aiemmin olen laskeskellut, että n. 15 isoa mäntyä, pari kuusta ja ehkä yksi koivu kaatuisi. Niistä olisi sitten tarkoitus (lähinnä männyistä) saada pihasaunavärkit.
Blogi avattu
Jonkin aikaa mietittyäni päätin sitten avata ensimmäisen blogini.
Olemme käynnistämässä, tai siis käynnistäneet jo, talonrakennusprojektia ja ajattelin, että voisi projektin kulun kirjata jonkinlaiseksi päiväkirjan tapaiseksi.
Eli tästä se alkaa.
Olemme käynnistämässä, tai siis käynnistäneet jo, talonrakennusprojektia ja ajattelin, että voisi projektin kulun kirjata jonkinlaiseksi päiväkirjan tapaiseksi.
Eli tästä se alkaa.
Tilaa:
Kommentit (Atom)
A
Y